Interiors
The interiors are designed for deep work, with minimal material distractions. Walls and floors are covered with objects from the clients travels and items that inspire his work.

Bathrooms
2
size
1100 sqft
Usage
Second Home
Lot Size
5 Acres
Environment
Forest

Site Plan

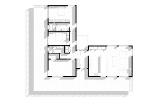
First Floor Plan

Axonometric View

Axonometric View

Exploded Axonometric View

The interiors are designed for deep work, with minimal material distractions. Walls and floors are covered with objects from the clients travels and items that inspire his work.
