
Bloomer Lane
Overview
Our client's family has been spending summers here going back five generations. Across the decades, this Western Catskills camp outside Livingston Manor went from a summer retreat, to a full time residence, to a summer retreat once again. HUTS was tasked with creating a code-compliant accessory dwelling and upgrading the infrastructure to support it. This custom ADU sports an outdoor sleeping porch and seamless connection between indoors and out.
Size
416 sqft
Lot Size
3 Acres
Environment
Meadow
Status
Completed

Site Plan

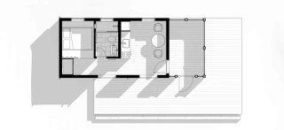
Ground Floor Plan

Loft Floor Plan

Axonometric View

Axonometric View

Exploded Axonometric View





Related Projects
All Projects

