Interior Palette
A sumptuous palette brings together walnut millwork, white oak flooring, black metal fixtures, and statement marble countertops and backsplashes.

Bathrooms
2.5
size
1800 sqft
Usage
Second Home
Lot Size
3 acres
Environment
Lakefront

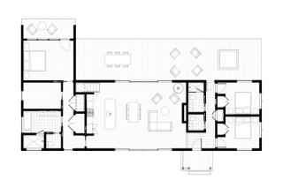
Ground Floor Plan

Axonometric Views


Site Photo

A sumptuous palette brings together walnut millwork, white oak flooring, black metal fixtures, and statement marble countertops and backsplashes.

Groundwork is underway, with a driveway in place and utilities service run to the building site. Construction will continue through the Summer and Fall, 2023.

