Interior Design
A neutral palette makes the outside view the focus of the property. The interior is meant to drift away, bringing the forest and lake experience in through expansive glass.

Bathrooms
3
size
3200 sqft
Usage
Investment Property
Lot Size
7 Acres
Environment
Forest & Lake Front

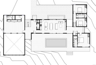
Ground Floor Plan

Axonometric Views


A neutral palette makes the outside view the focus of the property. The interior is meant to drift away, bringing the forest and lake experience in through expansive glass.


Perched on the edge of Tanzman Lake, the home siting is designed to maximize water views from the recording studio and the open living, kitchen, dining space.
