
Caretaker's Cottage
Imagined as an old stone ruin, resurrected. This stone clad home and garage is the caretaker’s cottage for a Columbia County estate.
Bathroom
1
size
1250 sqft
Usage
Guest House
Lot Size
6 Acres

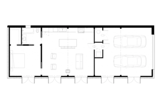
Ground Floor Plan


Related Projects
All Projects

