Interior Design
The interiors approach maximizes natural light with natural wood tones and whites throughout.

Bathrooms
2.5
Size
1800 sqft
Usage
Primary Home
Lot Size
2.5 Acres
Environment
Forest

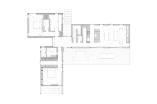
Ground Floor Plan

The interiors approach maximizes natural light with natural wood tones and whites throughout.









