Compact Footprint, Full Experience
HUTS designed the cabins to feel bigger than their square footage. We used covered outdoor space, built-in storage, and carefully framed openings to stretch the experience beyond the interior footprint.

Strategy
Location
Callicoon, NY
Units
4
Type
Microhospitality
Setting
Forest
Status
In Progress


Master Plan
Arrival
Parking handled once, kept out of the way
Privacy
Cabins spaced and oriented to avoid direct views
Circulation
Simple paths, short walks
Shared Moments
A few outdoor anchors for groups
Wellness
Placed to work as a loop



Unit Design
Basis
HUTS ADUs, customized for hospitality
Use cases
One-night stays through week-long stays
Guest mix
Individuals, couples, small families
Operations
Durable details + quick resets
HUTS designed the cabins to feel bigger than their square footage. We used covered outdoor space, built-in storage, and carefully framed openings to stretch the experience beyond the interior footprint.
We used sleeping lofts to expand how each unit works without adding unnecessary bulk. That move let us keep the cabins compact while still making room for different guest mixes and lengths of stay.
We started with repeatable HUTS building logic, then tailored it to this site and this use. That approach helped us keep the project efficient while still giving Gulf Road its own identity.
The lofted bedrooms fit a queen size bed to accomodate couples and longer stays. The views from upstairs feel like a tree house, perched among the pines.




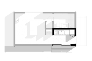
The efficient kitchenette includes a half-size refrigerator, sink, and cooktop.

The three piece bath is closer to a hotel suite than a glamping experience.

The queen size bed is surrounded by built-in millwork and storage.

Amenities & Guest Experience
Best for
Couples, friends, small groups renting multiple cabins
Experience
Quiet stays, outdoor time, simple wellness loop
Shared spaces
Light-touch outdoor gathering moments

Destination outdoor amenities - like the fire pit - are positioned along the amenity circuit. They are places to visit with intentionality, where taking a walk to them across the landscape is part of the experience.

HUTS kept the wellness program intentionally simple. We focused on a small number of elements that invite guests outside and make the landscape part of the stay.
Instead of packing the site with too many features, we curated a tighter set of experiences around fire, water, movement, and rest. That gave Gulf Road a stronger identity and made the amenities feel more memorable in actual use.

We used the wooded setting to shape the placement of the buildings, the spacing between them, and the overall feel of the property. HUTS worked to keep the architecture quiet enough that the landscape could stay in the foreground.
Rather than fight the site, we let the trees, clearings, and edges guide the plan. That helped us make Gulf Road feel settled into its setting instead of dropped onto it.

HUTS handled parking simply and intentionally. We kept arrival easy and direct, then let the experience shift quickly from car-based access to a quieter, more pedestrian feel inside the property.
By placing parking near the front of the site, we made it easy for guests to arrive, unload, and get oriented without letting cars dominate the experience.
Stats
04
Cabins
02
Lots developed under residential zoning